Casa mobile di lusso, tipo mini-casa – 35 m²
Casa mobile di lusso, tipo mini-casa – 35 m²
Scopri il comfort e la funzionalità della nostra Tiny House Luxury Mobile Home di 6 metri (20 piedi), ideale come residenza principale, casa per le vacanze o alloggio temporaneo di alto livello.
Questa unità si espande fino a un totale di 35 m² (380 piedi²), offrendo una soluzione abitativa moderna, ecologica ed efficiente.
Costruzione e materiali di alta qualità
-
Struttura in acciaio ad alta resistenza
-
Pareti con pannelli in schiuma ignifuga
-
Tetto con isolamento termico in lega di alluminio-magnesio-manganese
-
Pavimento in magnesio con rivestimento laminato da 2 mm, resistente all’usura
-
Valore R: 0,2 ~ 0,5 (m² K/W) → eccellente isolamento termico
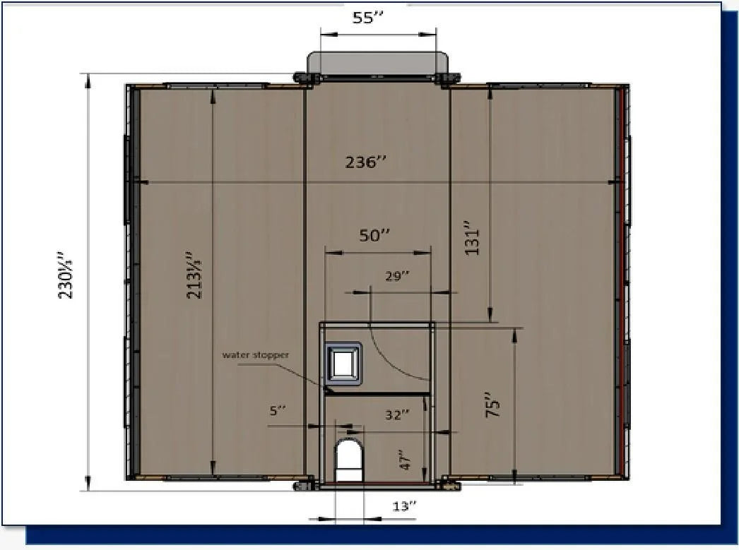
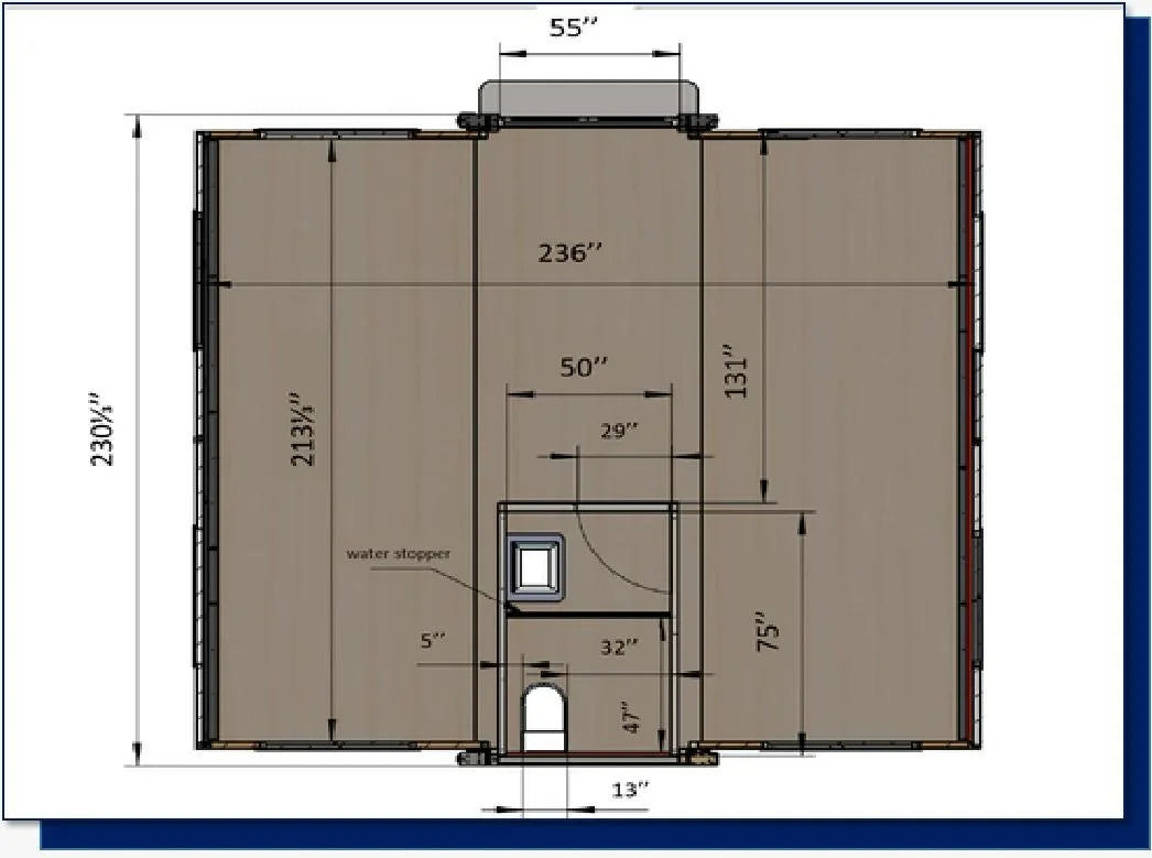
Dimensioni
-
Dimensioni espanse: 5,79 m (L) × 6,10 m (P) × 2,44 m (A)
-
Area totale: 35 m²
Finestre e porte
-
Finestre scorrevoli in vetro temperato doppio con zanzariera
-
Finestra del bagno in plastica con vetro
-
Porta principale in alluminio con serratura di sicurezza
-
Porta del bagno in WPC con vetro satinato
Bagno completo
-
Doccia con miscelatore, supporto, tenda impermeabile e scarico
-
Lavabo con specchio e accessori in acciaio inox/leghe resistenti
-
Estrattore d’aria silenzioso incluso
Sistemi idraulici ed elettrici
-
Collegamenti acqua calda/fredda in PPR, scarichi in PVC
-
Sistema elettrico pronto, configurazione finale a carico del cliente
-
Sistema di espansione idraulica
-
Cilindri idraulici con pressione di 3000 N
-
Cavi metallici φ5 mm
-
Componenti progettati per durabilità e uso intenso
Resistenza e durata
-
Carico neve: fino a 40 lb/ft²
-
Resistenza al vento: fino a 113 km/h (70 mph)
👉 La Mini Casa di Lusso di 35 m² è ideale come residenza, casa per le vacanze, ufficio mobile o soluzione abitativa sostenibile, con design moderno e materiali di alta qualità per resistere a condizioni estreme.
Impossibile caricare la disponibilità del ritiro

